Exclusive Doppelhaushälfte Solln
| 6 Zimmer | ca. 211,66 m² Wohnfläche | ca. 287,00 m² Nutzfläche | ca. 339,97 m² Grundstück |

Der Stadtteil München Obersendling / Solln gehört zu den begehrtesten Stadtteilen insbesondere für Familien mit Kindern. Aufgrund der hervorragenden Anbindung an den öffentlichen Nahverkehr erreichen Sie das gesamte Münchner Stadtgebiet ohne Probleme. Zum anderen ist dieser Stadtteil einer der grünsten in München. Selten Sieht man so viele Parks und Grünanlagen wie hier. Große Häuser und kleinere Mehrfamilienhäuser reihen sich hier harmonisch aneinander. Neben der hervorragenden Infrastruktur verfügt Obersendling - Solln auch über ein exzellentes Angebot an Schulen, Kindergärten und weiterführenden Schulen. Verwirklichen Sie hier Ihren Traum vom Eigenheim und überzeugen Sie sich selbst von den Vorzügen dieser einzigartigen Wohnlage.
5 Min. zur Bus-Station (Fertigstraße),
10 Min. zur U-Bahn (Machtlfingerstraße),
25 Min. in die Innenstadt (Marienplatz)
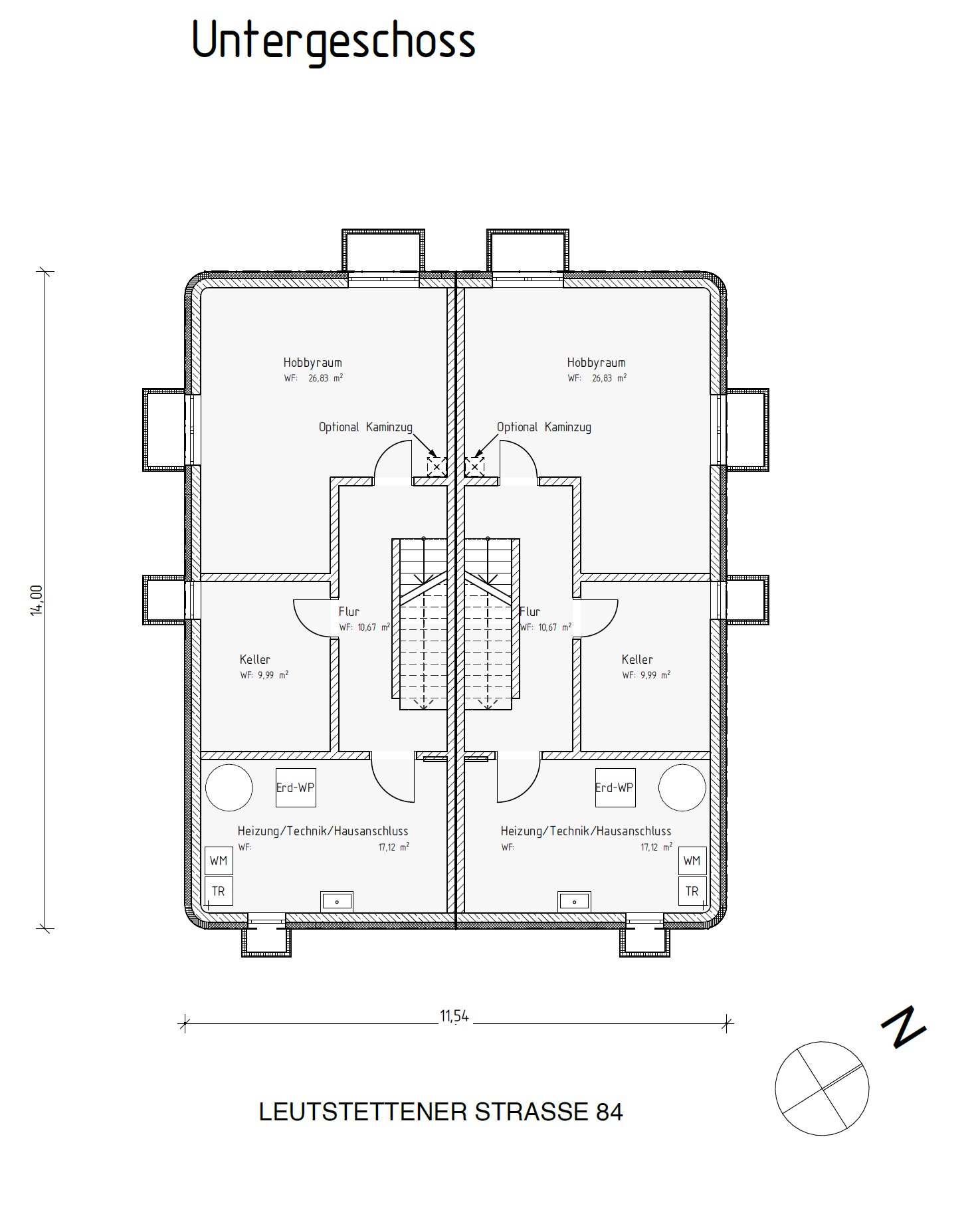
Die Häuser sind mit einem durchdachten Grundriss versehen und zeitgemäß geplant. Hierzu zählen ein offener Küchenbereich und ein großes Wohnzimmer mit Designertreppe ins Obergeschoss. Das Obergeschoss verfügt jeweils über drei geräumige Schlaf- und ein Arbeitszimmer. Das Badezimmer ist mittig angeordnet.
Das Dachgeschoss bietet einen eigenen Bereich für die Eltern mit Badezimmer, Ankleide und Schlafzimmer. Eine hochwertige und zukunftsgerichtete Ausstattung in Bezug auf Energie und Design vervollständigen dieses extravagante Projekt.
Kaufpreis: € 2.499.500,00
Einzelgarage € 39.500,00
Provisionsfrei für Kaufende
Alle Informationen sind ausschl. Angaben des Verkäufers.